Harlow Learning Centre is now onsite

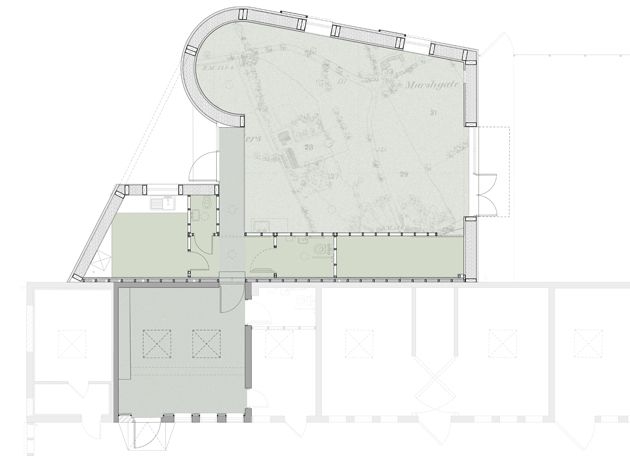
ModCell have recently installed their straw bale panel system at the new Learning centre in Harlow. This is the first project that incorporates ModCell curved wall panels in Harlow. Harlow Council and Architects, Kaner Olette, have brought together a building that is not only attractive and functional but very sustainable. It world well with the location as an additional offering at the 'Pet's Corner' in Harlow.

The Learning centre is a sensitive re-working of a degraded central hub of 1960s New Town park. This is as part of a wider landscape led masterplan.

The Scheme includes a new build ModCell strawbale learning centre with a flexible internal space, black stained timber cladding, natural ventilation and biomass heating.

The Learning Centre will enable an improved educational offer for local schools and local people. A new educational pack is being created that will provide resources that links the Town Park into the national curriculum.

Learning Centre Team:

Client:

Harlow Council Logo.png
Harlow Council

Architects:
Kaner Olette Logo.jpg
Kaner Olette architects

Main Contractor:
Bolt and Heeks logo 2.png
Bolt & Heeks